リベラルエステート|大阪市の不動産|新築・中古戸建・マンション・土地ロゴ画像 リベラルエステート|大阪市の不動産|新築・中古戸建・マンション・土地ロゴ画像

大阪市の不動産仲介はリベラルエステート

物件一覧

PROPERTY

中古戸建

【東住吉区】東田辺3丁目 店舗付き住宅 

  • 大阪市東住吉区

  • 近鉄南大阪線「針中野」駅 徒歩5分
    大阪メトロ谷町線「駒川中野」駅 徒歩12分

  • 東田辺小学校・中野中学校

価格 6500 万円

内覧・無料ご相談受付中

気になる物件はお早めにご相談ください

  • 物件情報
  • 周辺環境

価格・セールスポイント

価格 6500万円
セールスポイント

幹線道路沿いの店舗付き住宅♪
2階部分はカフェ仕様♪
防犯性に優れたビルドイン駐車場♪

 

 

~おすすめポイント~
■幹線道路沿い
■対面に大型商業施設あり
■店舗付き住宅
■2階部分店舗
■ビルドイン駐車場
■4台以上駐車可能
■建坪約82坪
■前面道路幅員約25m
■間口約19.5m
■駒川商店街近く

 

 

~周辺環境~
・スーパーまで徒歩約1分
・コンビニまで徒歩約4分
・ドラッグストアまで徒歩約4分
・小学校まで徒歩約3分
・保育園まで徒歩約2分
家族でスポーツやイベントが楽しめる大型公園、長居公園まで徒歩約7分♪

 

 

住宅ローンなどの資金計画もお気軽にご相談ください!!

 

※中国語対応可能

 

お問合せお待ちしております!!

 

 

所在地・交通・校区

所在地 大阪府大阪市東住吉区東田辺3丁目
最寄り駅 針中野駅 徒歩5分/駒川中野駅 徒歩12分
沿線 近鉄南大阪線/大阪メトロ谷町線
校区 東田辺小学校・中野中学校

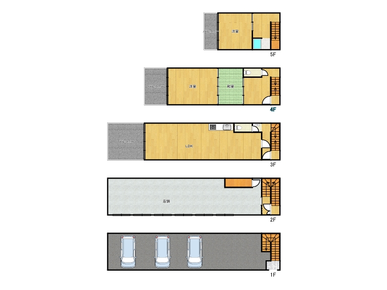
土地・建物

土地面積 82.28㎡公簿 建物面積 272.71㎡
私道面積 構造 鉄骨・木造
築年月/完成予定 1982年2月 現況 空家

物件詳細

土地権利 所有権 間取り 4LDK
地目 宅地 接道状況 西向き約25m、間口約19.5m
駐車場 4台 建物階数 地上5階
建ぺい率 80% 容積率 300%
用途地域 第二種住居 都市計画 市街化区域

設備

設備

都市ガス・電気・上水道・下水道

取引条件等

引渡時期

相談

その他

備考

交通機関

  • 近鉄南大阪線「針中野」駅画像

    近鉄南大阪線「針中野」駅

    徒歩約9分

  • 大阪メトロ谷町線「駒川中野」駅 画像

    大阪メトロ谷町線「駒川中野」駅

    徒歩約12分

教育機関

  • 東田辺小学校画像

    東田辺小学校

  • 画像

  • 中野中学校画像

    中野中学校

医療機関・金融機関

  • 東住吉森本病院画像

    東住吉森本病院

  • 画像

  • 三井住友 駒川支店2画像

    三井住友 駒川支店2

  • 画像

  • 画像

ショッピング

  • カナートモール 南田辺店1画像

    カナートモール 南田辺店1

  • コノミヤ 南田辺店1画像

    コノミヤ 南田辺店1

  • スギ薬局 鷹合店画像

    スギ薬局 鷹合店

  • 西松屋 針中野店画像

    西松屋 針中野店

その他

  • 東住吉区役所画像

    東住吉区役所

  • 長居公園画像

    長居公園

CONTACT

この物件について気になる方は
お気軽にお問い合わせください

物件を探す

エリアから探す

沿線から探す

物件種別から探す

販売価格から探す

キーワード

自由にご入力ください

会員様限定の物件を
多数掲載中

売主様のご都合で広告を控えている物件など、会員様にしかお見せできない物件が閲覧可能になります。

一般公開物件

215

会員限定物件

234

掲載総物件数

447

CONTACT

お問い合わせ

まずはお気軽にお問い合わせください

ご購入・ご売却に関するご質問は、お電話・お問い合わせフォームにて受付中です。
多様なニーズに迅速対応する経験豊富なスタッフが丁寧にサポートいたします。